一、概述:
LW8A-40.5型户外高压六氟化硫路器是三相交流50HZ的户外高压电气设备;适用于40.5kV输配电系统的控制和保护;也可用于联络断路器及开合电容器组的场合;并可内附电流互感器供测量与保护。
LW8-40.5型断路器配用CT14型弹簧操动机构。断路器负荷国家标准GB1984-89《交流高压断路器》和国际电工委员会标准IE出版物《高压交流断路器》的要求。
LW8-12(D) ⅠⅡⅢ系列户外高压六氟化硫断路器LW8-12系列六氟化硫断路器是一种用SF6气体作为灭弧和绝缘介质的柱上断路器,是目前城网和农网推广使用的换代产 品,其优良的性能价格比,是目前其他12KV级户外断路器不可比拟的。Ⅰ型为人力储能弹簧机构,配有手动分闸拉环,实现就地操作。主要适用于柱上10KV 电网分支回路型的控制和保护。Ⅱ型为电动储能弹簧机构,其分闸、合闸由合、分闸线圈控制。同时配有手动分、合闸拉环,配置合闸控制器能实现自动重合闸操 作。适用于中、小变电站作为控制和保护之用。Ⅲ型为电磁机构。
二、主要特点:
开断性能优良,采用压气式灭弧室,燃弧时间短,电寿命长,在额定电压下连续开断25千安20次不检修,不更换六氟化硫气体;绝缘可靠,机械可靠性高,合闸能力强,能频繁操作;开合电容器组电流400安无重燃;切空长线25、50公里无重燃;结构简单、体积小,不检修周期长。
三、使用环境条件:
海拔高度:不超过2500;米;高原型4000米;
环境温度:-30℃—+40℃(特殊要求-40℃—+40℃);
相对湿度:日平均不大于95 %,月平均不大于90 %(25℃);
风速:不大于35米 / 秒;污秽等级为III级;
瓷套爬距为1050mm(1320mm;
日照:0.1w/cm2 ;
覆冰:10mm(MAX)
地震条件:垂直加速度0.3g;
水平加速度0.15g(max)没有易燃物质、爆炸危险、化学腐蚀及剧烈振动的场合。
四、主要技术参数
|
序号 |
项目名称 |
参数 |
|
1 |
额定电压(kV) |
40.5 |
|
2 |
额定电流(A) |
2000 |
|
3 |
额定短路开断电流(kA) |
31.5 |
|
4 |
额定失步开断电流(kA) |
7.9 |
|
5 |
额定开合单个电容器组电流(A) |
400 |
|
6 |
额定操作顺序 |
分-0.3s-合分-180s-合分 |
|
7 |
SF6气体额定充气压力(MPa) |
0.45 |
|
8 |
分闸时间(ms) |
≤60 |
|
9 |
合闸时间(ms) |
≤100 |
|
10 |
刚分速度(m/s) |
3.4 |
|
11 |
刚合速度(m/s) |
3.2 |
|
12 |
断路器重量(kg) |
1400 |
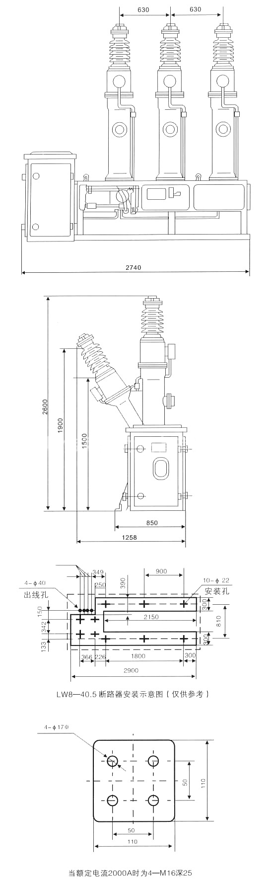
五、安装尺寸图:
推荐资讯 / Recommended News
- 2022-08-24 持久浅谈真空断路器的理伦
- 2022-08-24 持久浅淡真空断路器
- 2022-08-24 智能真空断路器的技术问题解答
- 2022-08-24 ZW32真空断路器核心作用
- 2022-08-24 真空断路器比较难处理的问题
- 2022-08-24 高压真空断路器的维护安装
- 2022-07-23 真空断路器寿命是哪些因素影响的
- 2022-07-23 真空断路器跳闸次数多有没有影响
- 2022-07-23 真空断路器试验过程中的事项
- 2022-07-23 真空断路器原则和功能的研究范围
乐清市持久电气有限公司
收藏本站
联系持久







